Biệt thự 1 tầng mái nhật
Chủ đầu tư: Anh Thành
Địa điểm xây dựng: Tỉnh Long An
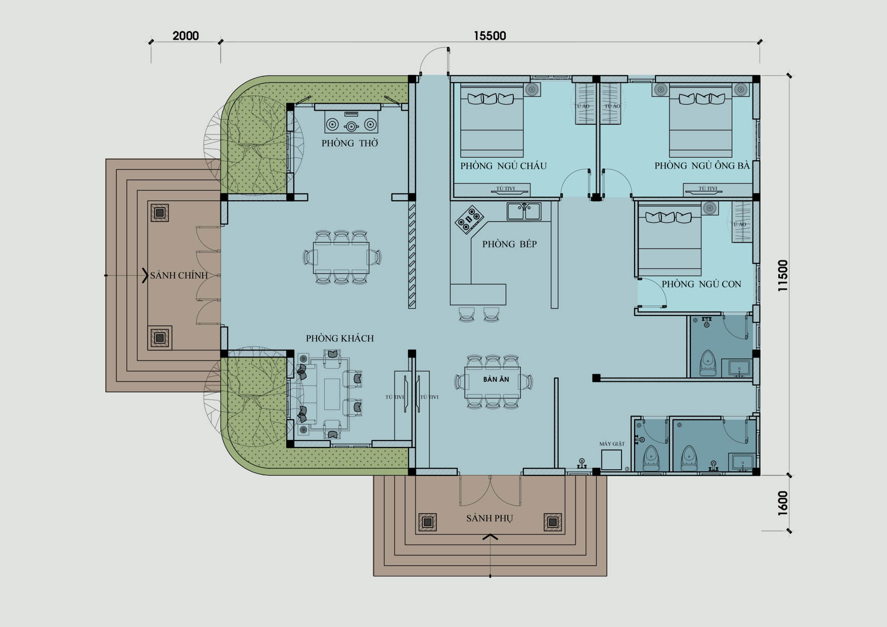
Qui mô: diện tích xây dựng 160m2, 3 phòng ngủ, 1 phòng khách, 1 phòng bếp, 1 phòng thờ, 2 nhà vệ sinh.

Công trình biệt thự mang phong cách thiết kế hiện đại, mới lạ với mái ngói theo phong cách Nhật bản, màu xanh dương.

Đường nét chi tiết đơn giản, mạnh mẻ, vòm cong tạo sự uyển chuyển mềm mại.

Cửa chính 4 cánh bằng gỗ đỏ Nam Phi, chân tường, bồn hoa ốp đá xám núi lửa, diềm mái ốp dá bốc xám trang trí.

Khối nhà vuông vức được hệ mái ngói bao che cân đối tôn lên nét bề thế cho công trình.

Mặt bằng bố trí công năng linh hoạt theo trường phái phong thủy bát trạch, có 2 sảnh đón lớn, phòng thờ, phòng khách bếp, phòng ăn thông không gian mở tăng diện tích thích dụng cho ngôi nhà.
