Qui mô Nhà Anh Đạt gồm:
#Tầng Trệt Phòng Khách, Bếp Ăn có Đảo Bếp, Garager.
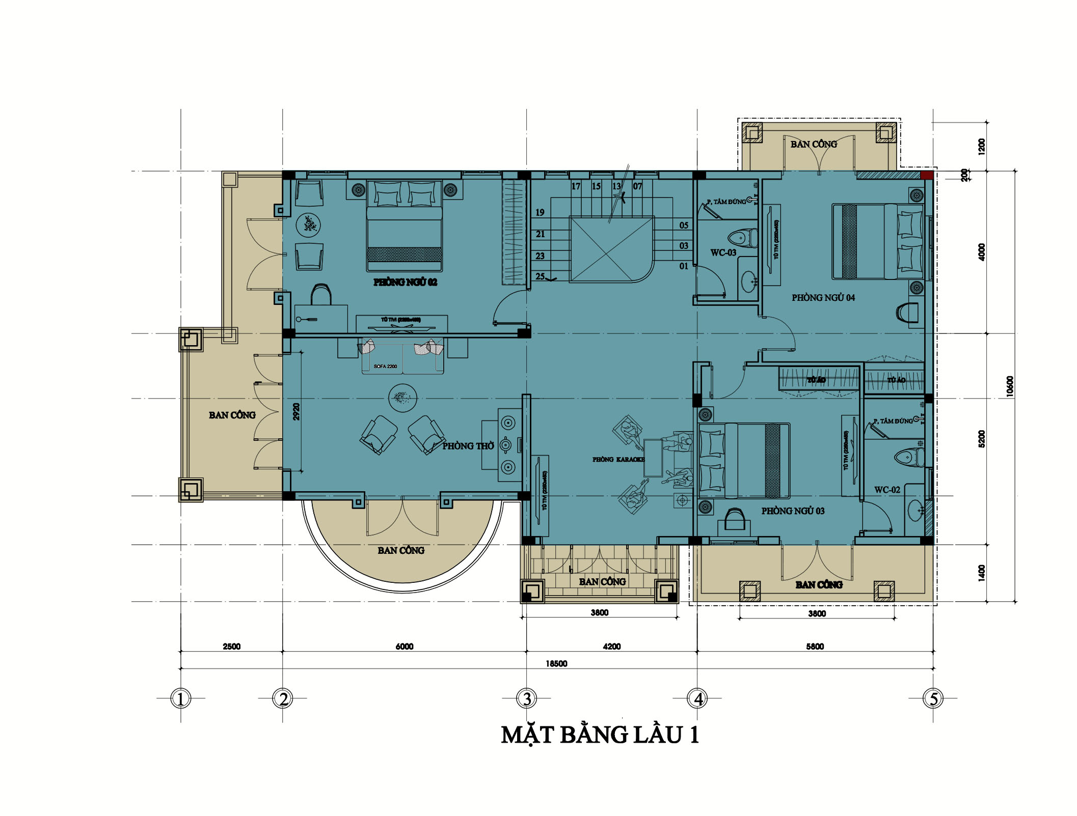
#Lầu 1 gồm Phòng Thờ, p. Sinh Hoạt Chung, 3 Phòng Ngủ, 2 wc
---- Nhà Biệt thự 2 tầng đẹp tham khảo thêm ở đây! Nhà Mái Thái 2 Mặt Tiền!
#Lầu 1 có 3 phòng Ngủ đều có Ban Công nhìn ra Sân vườn bên dưới rất đẹp mà còn tạo mái vòm che mái cho phòng ngủ, Mái Vòm trang trí và là điểm nhấn cho Ngôi Nhà.

# Tầng trệt Không gian Phòng Khách , Phòng Ăn, Nhà Bếp liên thông giúp ngôi nhà Thông thoáng không gian kết nối tốt khi sử dụng.
# Cầu Thang xoay ngang 45* có Tay trụ Cái 2 bên tạo điểm nhấn cho Phòng Khách.

#Nhà được Thiết kế với nhiều chi tiết Chỉ và Ốp Gạch trang trí, màu Vàng Đất tự nhiên bậc lên nhờ vào Vật liệu Trang trí.
#Chủ Nhà Thích mở nhiều Ban Công để làm nơi ngắm San vườn từ trên cao mà phòng nào cũng có.

#Để có ngôi nhà đẹp đôi khi Kiến Trúc Sư phải bảo vệ quan điểm Thiết kế của mình khi nhận thấy vật liệu Chủ nhà lựa chọn không phù hợp với Thiết kế.
# Sản Phẩm có đẹp hay không còn phụ thuộc vào chủ đầu tư có chịu theo KTS tới cùng hay không.
Xem thêm mẫu nhà Biệt thự 2 tầng đẹp tại đây nhé!
