Sở hữu ngoại thất phong cách kiểu pháp sang trọng, nội thất tân cổ điển tinh tế cùng sân vườn tràn ngập cây xanh… biệt thự vườn 2 tầng 4 phòng ngủ mê hoặc người nhìn ngay từ những ánh mắt đầu tiên.
Biệt thự vườn 2 tầng 4 phòng ngủ được nhắc đến là một không gian sống thoải mái, riêng tư đáp ứng nhu cầu của gia đình có nhiều thành viên, hơn thế với sân vườn tạo ra một nơi sống để thư giãn, nghỉ dưỡng rất phù hợp với những người yêu thiên nhiên.
Nếu bạn đang tìm kiếm ý tưởng cho mẫu thiết kế biệt thự vườn 2 tầng 4 phòng ngủ thì hãy cùng tham khảo mẫu thiết kế dưới đây nhé.
Ngoại thất biệt thự vườn 2 tầng 4 phòng ngủ
Được xây dựng trên một diện tích khá rộng rãi, không gian thông thoáng… biệt thự vườn 2 tầng 4 phòng ngủ thể hiện rõ nét vẻ đẹp tinh tế của mình thông qua những đường chỉ nhẹ nhàng trên tường cùng mái thái dốc nhẹ đầy thanh thoát.
Biệt thự nhà vườn sở hữu nét đẹp nhẹ nhàng khi không sử dụng quá nhiều màu sắc hay hoa văn trang trí, những đường cong, mảng tường giật cấp mà thay thế vào đó là màu trắng xám đơn giản, cùng hệ cửa kính, mái ngói được đồng nhất hài hòa với nhau tỏa ra vẻ đẹp sang trọng, đẳng cấp.

Hướng đến một không gian sống gần gũi với thiên nhiên, biệt thự nhà vườn sở hữu khoảng sân rộng rãi được trồng nhiều cây xanh, cỏ cây hoa lá cùng với đó là những cửa kính kết nối với thiên nhiên từ đó cảm nhận được sự thư thái, đậm chất nghỉ dưỡng khi trở về nhà.

Bản vẽ mặt bằng biệt thự nhà vườn 2 tầng 4 phòng ngủ
Có lẽ thấy rằng, để đáp ứng được một không gian sống thư giãn, tiện nghi thì việc đưa ra bản vẽ mặt bằng biệt thự nhà vườn 2 tầng 4 phòng ngủ như thế nào là rất quan trọng, nó đòi hỏi kiến trúc sư phải “cân đo đong đếm” để tối ưu diện tích, phân chia không gian, bố trí nội thất… đảm bảo khoa học, phong thủy và phù hợp.
Và dưới đây là bản vẽ mặt bằng công năng biệt thự 2 tầng 4 phòng ngủ mà bạn có thể tham khảo.

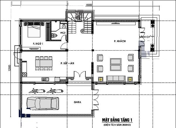
Mặt bằng tầng trệt gồm: Gara, phòng khách, bếp + phòng ăn, phòng ngủ + WC
Biệt thự nhà vườn 2 tầng được thiết kế theo chữ L vì thế việc phân chia công năng trở nên dễ dàng hơn, các phòng đều được đón nhận ánh sáng một cách tốt nhất cũng như có nhiều cửa đi ra vào tạo điều kiện thuận lợi, riêng tư trong quá trình sinh hoạt.
Phòng khách và bếp được bố trí trong một không gian mở kết nối với nhau nhưng vẫn đảm bảo sự riêng tư, cách xa. Đặc biệt khu vực bếp có cửa sổ hướng ra bên ngoài nên giúp quá trình trao đổi không khí, hạn chế được việc ám mùi thức ăn trong nhà.
1 Phòng ngủ được bố trí ở bên dưới tầng trệt để giúp cho quá trình thư giãn, nghỉ ngơi được thuận tiện rất phù hợp cho những gia đình có người lớn tuổi để hạn chế việc leo cầu thang, đảm bảo sự an toàn.

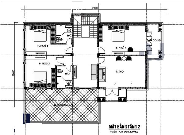
Mặt bằng tầng 2 gồm: 3 Phòng ngủ, 1 phòng thờ, 2 WC, sân thượng
3 phòng ngủ được phân chia diện tích cũng như lên phương án bố trí nội thất phù hợp đảm bảo yếu tố phong thủy, tối ưu không gian để giúp các thành viên trong gia đình có những giây phút thư giãn, nghỉ ngơi thoải mái nhất.
Phòng thờ luôn được cân nhắc kỹ lưỡng khi bố trí vì đòi hỏi những yếu tố phong thủy, hướng cửa ra bên ngoài và phải đảm bảo được sự thanh tịnh, yên tĩnh nhất.
Thiết kế nội thất biệt thự vườn 4 phòng ngủ 2 tầng đẹp
Để đảm bảo một không gian nội thất tiện nghi, sang trọng và phù hợp với gu thẩm mỹ tinh tế của gia chủ, kiến trúc sư đã lên phương án thiết kế biệt thự nhà vườn 4 phòng ngủ 2 tầng theo phong cách tân cổ điển, gam màu nhẹ nhàng.

Đầu tiên từ phòng khách có thể thấy những màu trắng xám nhẹ nhàng trên tường được điểm tô thêm những đường chỉ đậm chất tân cổ điển cùng với đó là những màu vàng nhẹ nhàng của rèm cửa.
Phòng khách trở nên ấm cúng hơn khi sử dụng thảm trải sàn họa tiết, điểm tô thêm gối ôm màu vàng cùng chiếc sofa bọc nệm bằng vải êm ái.

Và không gian bếp cũng được thiết kế nội thất, sử dụng màu sắc hài hòa với phòng khách. Tủ bếp được làm bằng gỗ tự nhiên sơn màu xanh nhẹ nhàng và những đường chỉ được thiết kế vừa đủ để tạo điểm nhấn vừa dễ lau chùi.

Tủ bếp được thiết kế nhiều ngăn, kiểu dáng kết hợp với những kệ mở giúp cho việc lưu trữ được gọn gàng và ngăn nắp hơn thế quá trình nấu nướng vì thế cũng dễ dàng hơn.

Không gian ăn uống của biệt thự vườn 2 tầng 4 phòng ngủ được bố trí ở một nơi lý tưởng khi tận hưởng đủ sự riêng tư vừa kết nối với thiên nhiên bên ngoài khi đặt cảnh những cửa kính rộng mở.
Bộ bàn ghế ăn bằng gỗ tự nhiên được thiết kế đường cong tinh tế cùng chạm khắc hoa văn đậm chất nghệ thuật, phần nệm và lưng ghế được bọc nệm mang đến cảm giác êm ái, thoải mái cho người sử dụng.

Là một người yêu sự lãng mạn, thích sự tinh tế thì mẫu phòng ngủ của thiết kế biệt thự vườn này chắc chắn sẽ làm bạn say đắm. Căn phòng được thiết kế phong cách tân cổ điển nhẹ nhàng, màu trắng tinh khôi điểm thêm chút sắc hồng cam vô cùng nổi bật.

Trong khi đó chiếc giường ngủ bọc nệm êm ái, rèm cửa 2 lớp vô cùng lãng mạn và ánh sáng thiên nhiên ngập tràn khắp ngỏ ngách của căn phòng từ đó mang đến sự êm ái, thoải mái cho người sử dụng. Sự hài hòa từ màu sắc đến nội thất hơn thế là việc sắp xếp nội thất hợp lý đã mang đến một không gian thư giãn tuyệt vời.

Nếu như phòng ngủ trước chúng ta thấy được sự lãng mạn, nữ tính thì ở phòng ngủ này người nhìn cảm nhận được sự sang trọng có phần nam tính. Vẫn là phong cách tân cổ điển song việc sử dụng màu sắc, nội thất khác biệt đã mang đến một vẻ đẹp riêng biệt phù hợp với sở thích của chủ nhân trong căn phòng.

Để thể hiện rõ nét vẻ đẹp tinh tế, sự chỉn chu trong một bản vẽ thiết kế hay một ngôi nhà thì ở những không gian nhỏ như nhà vệ sinh, có thể nói là nơi thể hiện rõ nhất ý đồ đó.

Và ở đây căn phòng cho chúng ta thấy sự đẳng cấp, tinh tế của gia chủ khi sử dụng màu sắc, phụ kiện trang trí cũng như nội thất rất chắt chiu, hài hòa để căn phòng vẫn đảm bảo tính nghệ thuật nhưng vẫn dễ dàng vệ sinh.
Trên đó là mẫu thiết kế biệt thự vườn 2 tầng 4 phòng ngủ đầy sang trọng theo phong cách tân cổ điển mà bạn có thể tham khảo. Có thể thấy rằng, sự nhẹ nhàng, tinh tế đã làm nên một ngôi nhà, một không gian sống đầy tuyệt vời. Và nếu bạn đang có ý định thiết kế xây dựng nhà, biệt thự thì hãy liên hệ tới EHOME để được tư vấn miễn phí nhé.
