#-Biệt thự 2 tầng được Thiết kế với Tông màu Beige (BE) đẹp hiện đại.

#- Cô Liễu Chủ Nhà có Cung mạng Thuộc Tây Tứ Trạch, Mặt bằng được bố trí như sau:
1- Cửa Chính Hướng Tây nam.
2- Bếp Hướng Tây.
3- Gường Ngủ Hướng Đông Bắc. (xem thêm chi tiết!)

-Vị trí ngôi nhà được xây trên Cung Đông Bắc của Miếng đất có Diện Tích =16,8 X 25.0m.
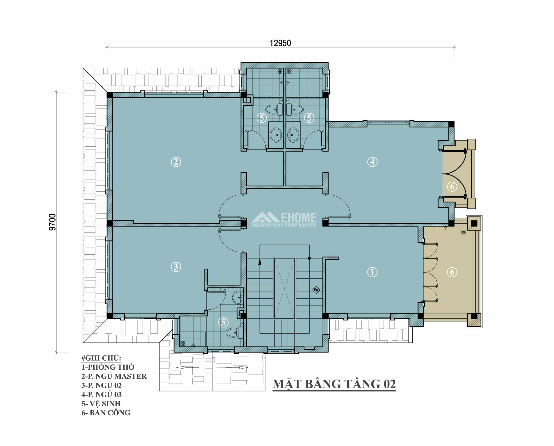
- Mặt Bằng Tầng 2 có Phòng Thờ ở phía trước nhà, 2 phòng ngủ nhỏ và 1 Phòng Ngủ Master.

-Mặt tiền là Tông màu Beige Sang Chảnh, Hiện đại.
- Cột chính ốp đá Nâu Tây Ban Nha!
- Cửa Đi chính là Gỗ Căm Xe Lào.
- Tường Sơn Màu Beige đậm làm nổi bậc đường chỉ trắng chạy xung quanh.
- Ngói là màu Xanh Rêu Đậm.
- Lan Can thi công Sắt Uốn nghệ thuật tôn lên nét mềm mại.
- Chỉ Viền ban Công ốp gạch Bông trang trí tạo điểm nhấn khác biệt cho Ngôi nhà.
MỜI CÁC BẠN XEM THÊM MẪU NHÀ BIỆT THỰ 2 TẦNG TẠI ĐÂY!
