Thiết kế Thi Công Nhà Phố Trọn Gói
Khách hàng : Cô Thủy Khu Tên Lửa - Quận Bình Tân
Đây là Công trình mà Công ty Ehome thực hiện hồ sơ nhanh nhất từ trước đến nay, chỉ trong vòng 25 ngày chúng tôi đã hướng dẫn khách hàng xong các thủ tục về các bước xin phép xây dựng nhà ở và thiết kế Bản vẽ kỹ thuật thi công, thiết kế nội thất, các công việc được thực hiện song song với nhau.
Thiết kế và thi công nhà phố nhanh chóng và đi kèm chất lượng
Kết quả thực hiện rất nhanh chóng, chỉ sau 15 ngày đã có Giấy phép xây dựng, sau 25 ngày có bản vẽ Thi công Kiến trúc và nội thất.
Cô Thủy biết đến chúng tôi nhờ một người bạn giới thiệu. Thật trùng hợp bạn của Cô Thủy cũng là khách hàng thân quen đã từng hợp tác với EHome Arch. Vậy là anh giới thiệu chúng tôi cho cô.
- Cô Thủy là người có khá nhiều Kinh nghiệm khi xây nhà, cho nên làm việc với cô chúng tôi phải thật cẩn trọng và tinh ý. Cho nên trước khi tiến hành, Cô đã đưa ra rất nhiều Yêu cầu cao và rất nhiều chi tiết ...
- Tuy nhiên khi làm việc với KTS - đội ngủ Thiết kế EHome Arch - Cô đã hoàn yên tâm, chúng tôi đã làm cho cô thật sự hài lòng khi nhận Bản vẽ Thi công.
Ngày 12/02/2022 là ngày chính thức Cô đã khởi công Xây dựng ngôi nhà.
Xin giới thiệu với bạn một số hình ảnh Thiết kế Thi Công Nhà Phố Trọn Gói của Công ty chúng tôi - Là những sản phẩm thật, người thật
NHÀ PHỐ 6X20m

PHỐI CẢNH MẶT TIỀN NHÀ PHỐ
Bạn có thể tham khảo thêm nhiều mẫu thiết kế nhà phố hiện tại tại EHome Arch mà chúng tôi đã từng thực hiện cho nhiều khách hàng.

Trang trí nội thất phòng ngủ Master


Ốp gạch trang trí phòng vệ sinh

Trang trí phòng ngủ bé gái


Phòng ngủ thoáng nhiều ánh sáng tự nhiên

Phòng bếp đẹp hiện đại



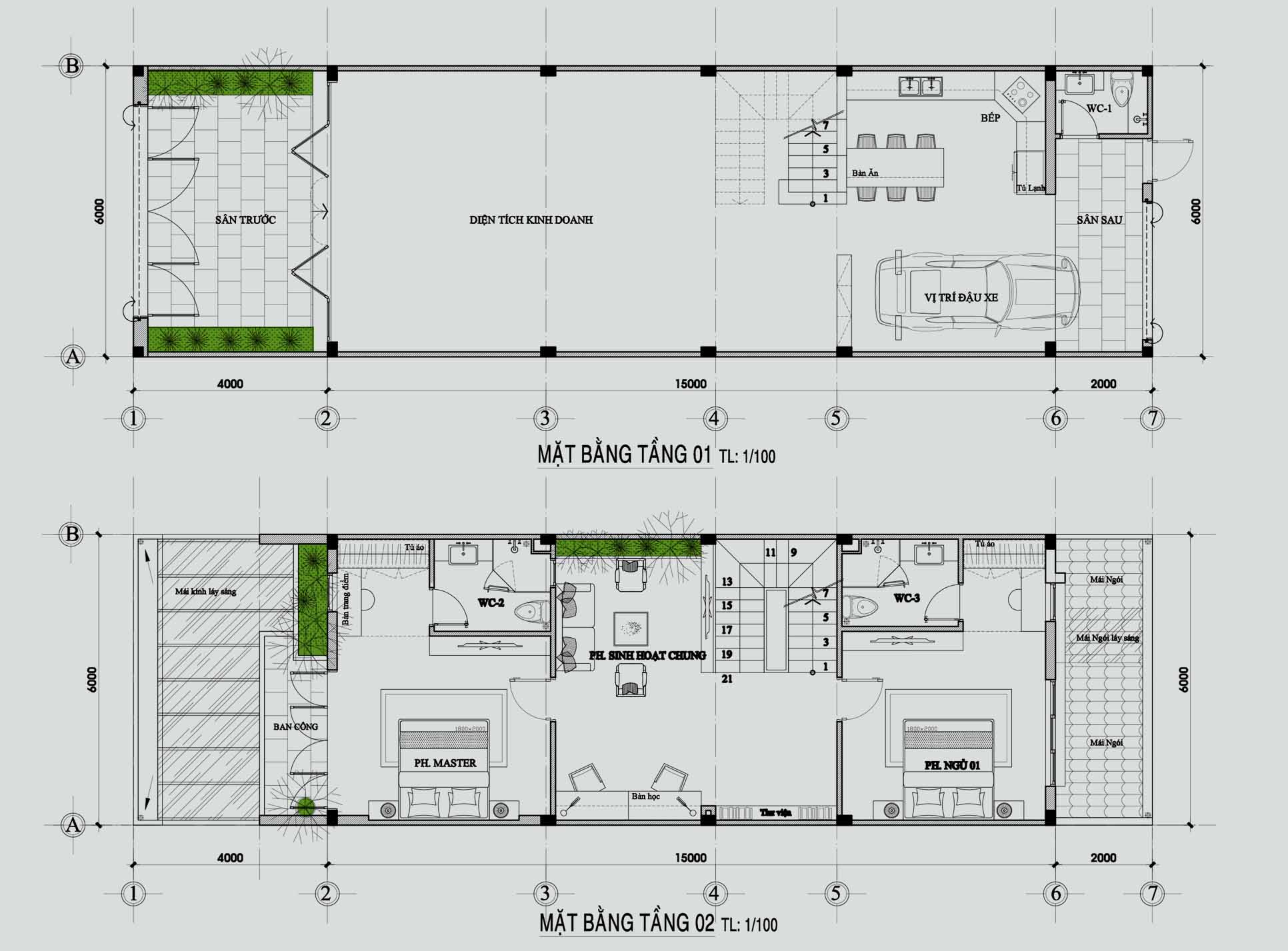
Mặt bằng các tầng





KHÁCH HÀNG HÀI LÒNG KHI NHÂN BẢN VẼ CỦA CÔNG TY EHOME


HÌNH ẢNH THI CÔNG VÀ CÔNG TÁC KIỂM TRA SẮT MÓNG, ĐÀ KIỀNG TRƯỚC KHI ĐỔ BÊ TÔNG.

MẶT BẰNG THI CÔNG MÓNG VÀ SÀN TẦNG TRỆT.
Tìm hiểu thêm khi xin giấy phép xây dựng.
https://ehomearch.vn/huong-dan-xin-giay-phep-xay-dung-nha-o-d302079/
#ehomearch.vn
#maubietthu.com.vn
#fanpage https://www.facebook.com/nhadepehome/
