Tất nhiên để xin giấy phép xây dựng thì cần chuẩn bị hồ sơ xin phép xây dựng đầy đủ để chứng minh tính pháp lý và kỹ thuật của dự án xây dựng. Việc chuẩn bị hồ sơ kỹ lưỡng sẽ giúp gia chủ tiết kiệm được thời gian, tránh bị gặp trục trặc, trả về từ đó ảnh hưởng đến thời gian xây dựng.
1/ Tìm hiểu về giấy phép xây dựng
Giấy phép xây dựng là một loại tài liệu được cấp bởi cơ quan nhà nước, theo một mẫu mã cụ thể, để chứng nhận cho phép cá nhân hoặc tổ chức tiến hành xây dựng các công trình như nhà cửa, công trình công cộng hoặc các dự án khác trong phạm vi được phép và theo quy định.
Để tiến hành xây dựng thì giấy phép xây dựng là một giấy tờ hay thủ tục không thể thiếu nhằm đảm bảo an toàn kết cấu cho ngôi nhà vừa tuân thủ pháp luật tránh những trường hợp đáng tiếc xảy ra. Nếu không có giấy phép xây dựng khi tiến hành xây nhà sẽ bị phạt tiền và trường hợp phạt nặng là sẽ phá dỡ công trình.

2/ Hồ sơ xin phép xây dựng gồm những gì?
Để tiến hành xin giấy phép xây dựng thì hồ sơ xin phép xây dựng cần có đầy đủ như sau:
- Đơn đề nghị xin cấp giấy phép xây dựng
- Bản sao công chứng giấy tờ chứng minh quyền sử dụng đất
- 2 bộ bản vẽ xin phép xây dựng kỹ thuật.
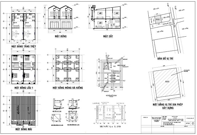
2 Bộ bản vẽ xin phép xây dựng bao gồm:
Bản vẽ mặt bằng công trình trên lô đất tỉ lệ 1/50-1/500 kèm sơ đồ vị trí công trình.
Bản vẽ mặt bằng các tầng, mặt đứng, mặt cắt công trình tỉ lệ 1/50-1/200
Bản vẽ mặt bằng móng tỉ lệ 1/50 – 1/200, mặt cắt móng tỉ lệ 1/50 và sơ đồ đấu nối hệ thống thoát nước mưa xử lí nước thải, cấp nước, điện tỉ lệ 1/50 – 1/200.

+ Nhà ở riêng lẻ ở khu đô thị không nằm trong lộ giới
Với trường hợp công trình nhà ở riêng lẻ ở khu đô thị không nằm trong lộ giới hoặc trong quy hoạch có diện tích >250m2 hoặc 1 trệt 2 lầu, gia chủ lưu ý hồ sơ xin giấy phép xây dựng cần có thêm:
- 02 Chứng chỉ hành nghề kiến trúc sư (01 chứng chỉ thiết kế kiến trúc, 01 chứng chỉ thiết kế kết cấu)
- 01 bảng kê khai kinh nghiệm của công ty thiết kế
- 01 giấy đăng ký kinh doanh của công ty thiết kế
- 01 Chứng chỉ hành nghề công ty thiết kế
+ Nhà ở riêng lẻ ở khu đô thị nằm trong lộ giới
Với trường hợp công trình nhà ở riêng lẻ ở khu đô thị nằm trong lộ giới hoặc trong quy hoạch:
Trường hợp này sẽ được cấp giấy phép xây dựng tạm (giấy phép xây dựng có thời hạn). Hồ sơ cần chuẩn bị lúc này gồm:
- 01 Đơn đề nghị cấp giấy phép xây dựng tạm
- 01 Giấy chứng nhận quyền sử dụng đất, CMND photo công chứng
- 01 Giấy cam kết tự phá dỡ công trình khi nhà nước thực hiện quy hoạch
- 02 Bộ bản vẽ thiết kế
Ngoài ra, Ủy ban nhân dân (UBND) tỉnh, thành phố trực thuộc Trung ương còn công bố mẫu bản vẽ thiết kế để hộ gia đình, cá nhân tham khảo khi tự lập thiết kế xây dựng.

3/ Những lưu ý khi chuẩn bị hồ sơ cấp phép xây dựng
Khi chuẩn bị hồ sơ xin phép xây dựng, có một số điểm quan trọng mà bạn cần lưu ý để đảm bảo rằng hồ sơ của bạn hoàn chỉnh và đáp ứng các yêu cầu pháp lý và kỹ thuật.
Xác định đầy đủ thông tin cần thiết: Đảm bảo rằng bạn đã thu thập đầy đủ thông tin và tài liệu cần thiết cho hồ sơ, bao gồm bản vẽ thiết kế, giấy tờ tùy thân, giấy tờ về quyền sở hữu đất đai, giấy chứng nhận quy hoạch, và các giấy tờ pháp lý khác.
Kiểm tra tính chính xác và hoàn chỉnh: Trước khi nộp hồ sơ, hãy kiểm tra kỹ lưỡng để đảm bảo rằng mọi thông tin được nhập đúng và đầy đủ. Bất kỳ sai sót nào có thể dẫn đến việc chậm trễ hoặc từ chối xin phép.
Tuân thủ các quy định và tiêu chuẩn kỹ thuật: Đảm bảo rằng bản vẽ thiết kế và các tài liệu liên quan tuân thủ các quy định và tiêu chuẩn kỹ thuật hiện hành. Điều này bao gồm tuân thủ quy định về an toàn, môi trường và xây dựng.
Theo dõi tiến độ xử lý hồ sơ: Sau khi nộp hồ sơ, hãy theo dõi tiến độ xử lý để đảm bảo rằng không có bất kỳ vấn đề nào xảy ra và cần phải giải quyết.
Tham khảo ý kiến của kiến trúc sư, công ty xây dựng nếu cần thiết
Nếu bạn không chắc chắn về bất kỳ phần nào của hồ sơ, hãy tham khảo ý kiến của các chuyên gia như kiến trúc sư, kỹ sư xây dựng, hoặc luật sư. Đội ngũ giàu kinh nghiệm sẽ cung cấp và chỉ dẫn cần thiết để đảm bảo tính chính xác và hoàn chỉnh của hồ sơ từ đó đảm bảo những thủ tục, giấy tờ cần thiết.
EHOME - công ty thiết kế xây dựng uy tín hàng đầu tại Việt Nam, với độ ngũ kiến trúc sư, kỹ sư nhiều kinh nghiệm, trình độ chuyên môn cao cũng như am hiểu về thủ tục pháp lý sẽ tư vấn pháp lý rõ ràng nhất. Bên cạnh đó, nếu có nhu cầu thiết kế xây dựng hãy liên hệ để được tư vấn miễn phí.
===> Xem thêm bài viết: Lệ phí xin phép xây dựng nhà ở
